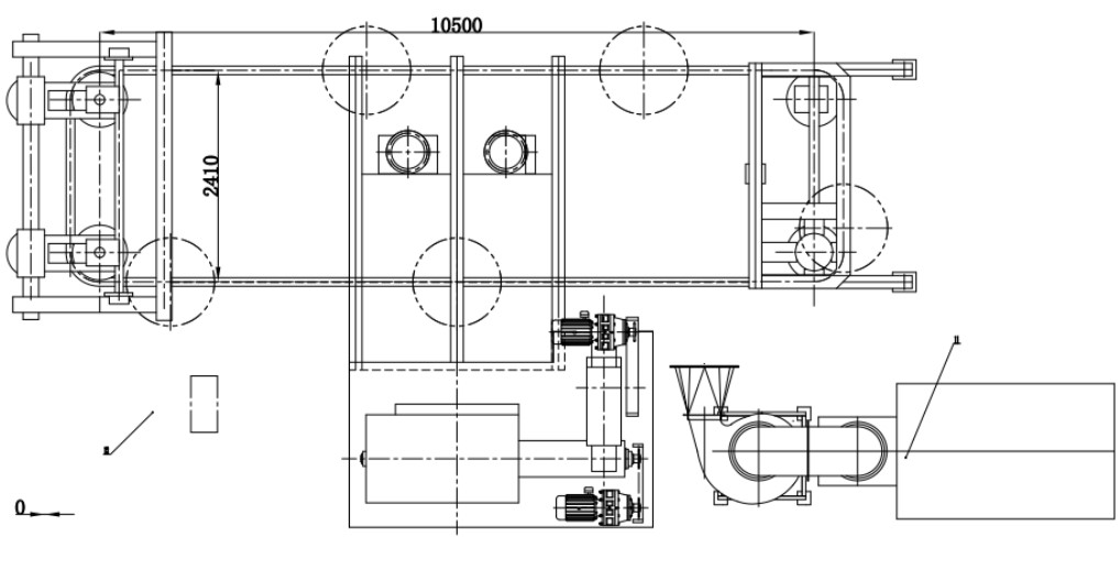
Дробеметная установка Q4815
Дробеметная установка Q4815 – это система непрерывного действия, которая полностью отвечает требованиям не только более быстрого и гибкого потока материалов, но и оптимизированного использования имеющегося пространства, улучшенного доступа ко всем критически важным зонам обслуживания и высокой общей эффективности. Эта конструкция для тех предприятий, где постоянно стремятся улучшить свои операции отделки.
Дробеструйная установка Q4815, а также версия Q3820 – это одна серия оборудования с вращающимся подвесом. В центре всей дробеструйной системы находится камера с турбинами (количество по запросу). Камера изготовлена из износостойкой марганцевой стали. Для дополнительной защиты от износа она облицована сменными литыми хромированными пластинами. Большая платформа для обслуживания, к которой легко добраться по лестнице, значительно облегчает необходимые работы по обслуживанию.
За счет своей полностью автоматической системы управления установка дробеструйной обработки Q4815 может предложить простую интеграцию и гибкую работу в рамках производственной системы. После того как оператор вручную разместил отливки и подтвердил этот шаг на панели управления, они подхватываются системой транспортировки через камеру. Для каждого типа заготовки могут быть определены и сохранены в соответствующих программах ПЛК конкретные параметры обработки и транспортировки. Это существенно способствует тому, что после обработки детали будут идеально чистыми без остаточных следов. В то же время они имеют высокооднородную шероховатость поверхности, которая отображает типичную литейную структуру заготовок, даже после того, как они будут окрашены. Все параметры процесса устанавливаются на основе подходящей рабочей смеси выбранных абразивных сред.
Чтобы приобрести понравившийся товар, необходимо его заказать. Есть несколько сценариев того, как это можно сделать.
- Выбрать понравившийся товар и нажать кнопку «Заказать». При оформлении заказа заполнить форму. Вписать информацию в поля: ФИО, телефон и e-mail. Затем вам перезвонит менеджер, чтобы подтвердить ваше согласие на совершение покупки.
- Выбрать понравившийся товар и нажать кнопку «В корзину». Затем перейти в корзину и нажать «Оформить заказ». Далее заполнить форму с контактными данными и отправить заявку. С вами свяжется менеджер для дальнейшего обсуждения.
- Перейти в карточку товара и нажать «Купить в один клик». После нажатия нужно заполнить форму и отправить заявку. С вами свяжется менеджер для дальнейшего обсуждения.
Мы работаем с физическими и юридическими лицами. И предоставляем сразу два варианта оплаты.
- Наличные. Вы подписываете товаросопроводительные документы, расплачиваетесь денежными средствами, получаете товар и чек.
- Безналичный расчет. Принимаем карты Visa и MasterCard. Доступен при курьерской доставке.
Ваш заказ можем доставить собственными ресурсами, при условии вашего нахождения в городе. Либо через 4 варианта доставки:
- Курьерская доставка. Курьерская доставка работает с 9:00 до 19:00. Когда товар поступит на склад, курьерская служба свяжется для уточнения деталей. Специалист предложит выбрать удобное время доставки и уточнит адрес.
- Самовывоз из магазина. Для получения заказа обратитесь к сотруднику в кассовой зоне и назовите номер.
- Сотрудничаем с постаматами. Срок хранения — 3 дня.
- Предоставляем почтовую доставку через почту России. Когда заказ придет в отделение, на ваш адрес придет извещение о посылке. Вскрывать коробку самостоятельно вы можете только после оплаты заказа.
